Aménager
Aménager

Studio de Jardin

33380 MIOS - Gironde - Nouvelle-Aquitaine

AMÉNAGEMENT BOIS

Aménagement exterieur

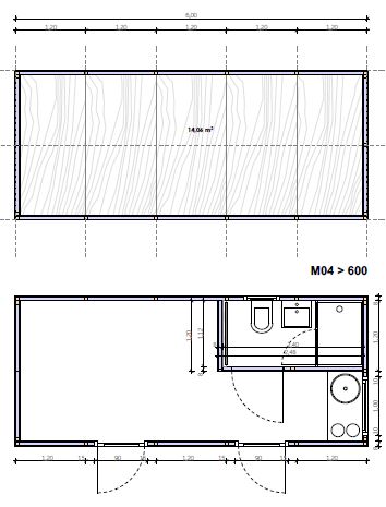
Structure bois de type modulaire en toit plat. Bardage pin des Landes pose verticale, panneaux sandwich de structure plancher/murs/toiture en peupliers, soubassement par poteaux bois et solivage.

Catégorie aménagement bois, aménagement exterieur
Numéro de projet114
Adresse du projet 12 bis rue de Ganadure
33380 MIOS
Date de candidature22/02/2018

aménagement bois

Coût total en € HT : 12500

aménagement exterieur

Année de réalisation : 2017
Coût total aménagement extérieur en € HT : 12500
Coût lots bois : 12500
Volume bois : 8
Surface aménagée en m² : 15

Liste des produits :

ProduitEssenceProvenances (lieu de croissance du bois)Traitements de préservationFinitionMarque et certification produit
Abri de jardin / CarportPeuplierNouvelle-AquitaineTraitement Classe 3b (autoclave)Aucune finition
Notice architecturale : Structure bois de type modulaire en toit plat. Bardage pin des Landes pose verticale, panneaux sandwich de structure plancher/murs/toiture en peupliers, soubassement par poteaux bois et solivage.
Approche environnementale : Un circuit court de part la provenance des bois, les notions de manuportabilité des panneaux permettent une livraison en KIT, selon le principe de panneaux à plat et ce quelque soit la superficie. Impact carbone à minima grâce à une parfaite optimisation des volumes et l'absence de grue pour le déchargement.
Descriptif technique de l'aménagement : Des murs et plafond interieur brut de peuplier, un revêtement de sol en parquet bois . Une isolation par fibre de bois ou XPS selon performance thermique recherchée.
Données déclaratives

Acteurs du projet

Etudes et ingénieries (1)

Maître d'œuvre - Architecte mandataire

KIT & A (33)




* : L'entreprise n'est plus active
Retour à la liste