Habiter une maison
Habiter une maison

A l'orée des bois

95590 Presles - Val d'Oise - Ile de France

BÂTIMENT / LOGEMENT

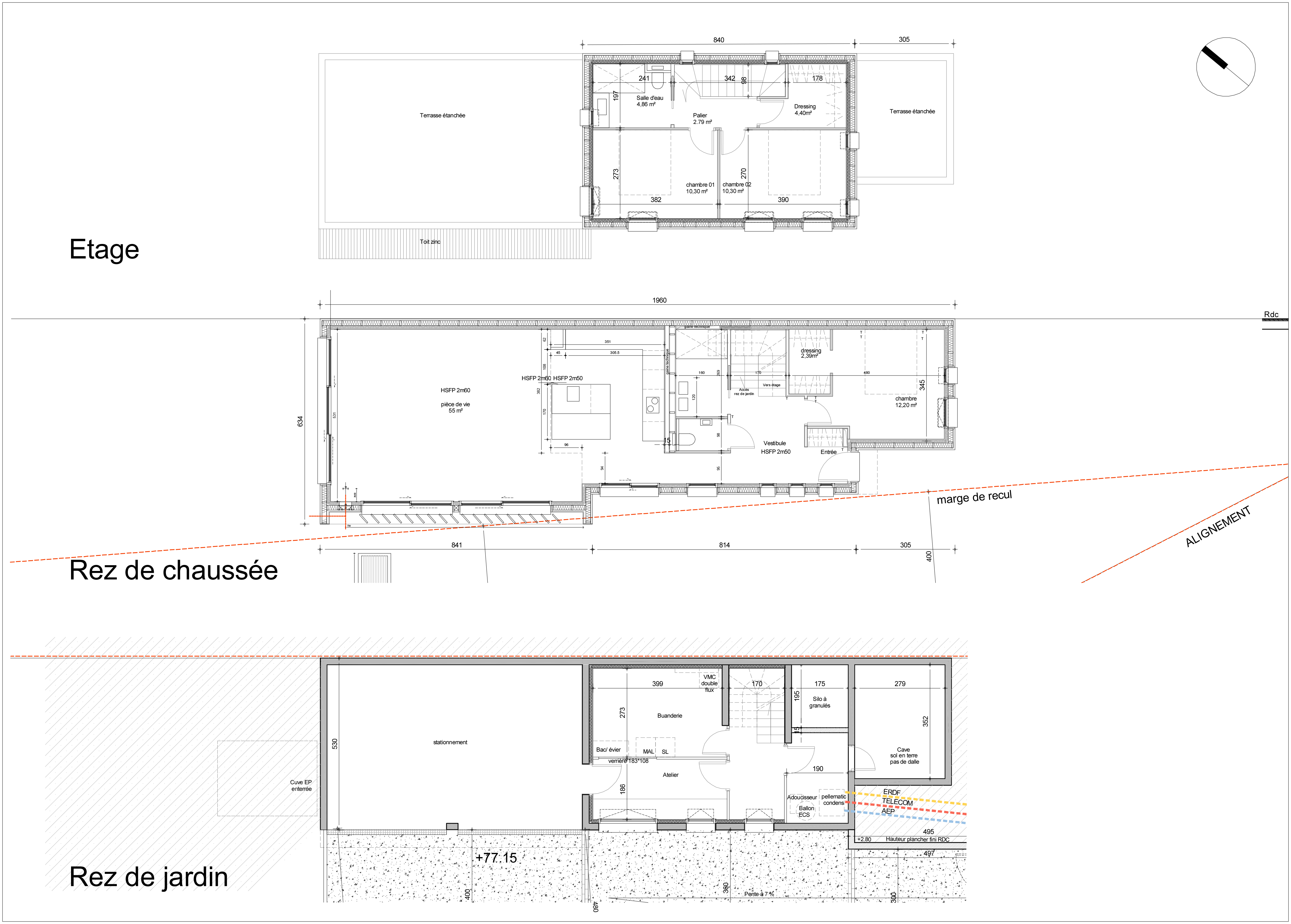
Le projet s’implante en lisière de forêt sur les hauteurs de Presles. Le terrain, long et étroit présente une double déclivité. Par ailleurs sa situation offre des vues dégagées et une orientation Sud-Est / Nord Ouest. Tout l’enjeu de l’implantation résidait dans un travail d’intégration au paysage: s’adosser à la forêt et s’ouvrir sur la vallée grâce aux trois autres façades suivant la course du soleil. La maison se compose de trois niveaux :un rez de jardin ancré dans le sol pour soutenir les terres, un rez de chaussée en lien avec le terrain naturel pour les espaces de vie et un étage.

Catégorie Bâtiment / logement
Numéro de projet1043
Date de candidature20/01/2019

Bâtiment / logement

Détail projet

Typologie de bâtiment : Neuf
Type de bâtiment : Logement individuel supérieur à 120 m²
Année de livraison : 2018
Surface totale du bâtiment en m² : 150
Coût total en € HT (hors foncier, hors VRD, hors honoraires) : 315000
Lot bois n°1 concerné : ossature bois
Coût du lot bois n°1 - € HT : 35286
Lot bois n°2 concerné : Bardage bois
Volume lot bois n°2 - m³ : 4
Coût du lot bois n°2 - € HT : 16000
Bois Français : non

Structure bois du bâtiment

Structure verticale :

ProduitEssenceProvenances (lieu de croissance du bois)Traitements de préservationMarque et certification produit
Panneau ossature boisEuropeTraitement Classe 2 (trempage)

Structure horizontale :

ProduitEssenceProvenances (lieu de croissance du bois)Traitements de préservationMarque et certification produit
Solivage traditionnelÉpicéa communEuropeTraitement Classe 2 (trempage)

Charpente :

ProduitEssenceProvenances (lieu de croissance du bois)Traitements de préservationMarque et certification produit
Charpente traditionnelleÉpicéa communEurope

Revêtement bois extérieur

Revêtement bois ou dérivés :

ProduitEssenceProvenances (lieu de croissance du bois)Marque et certification produitFinitionTraitements de préservation
Lame bois lamellé-collé ou aboutéMélèzeEuropeSaturateur

Menuiserie intérieure et extérieure

Menuiserie extérieure :

ProduitEssenceProvenances (lieu de croissance du bois)Marque et certification produitFinition
Brise soleil boisMélèzeEuropeLasure

Isolation des murs

Isolation intérieure des murs :

Produit
Laine de verre
Epaisseur (mm) Isolation intérieure des murs : 145

Isolation entre-montant des murs :

Produit
Laine de verre
Epaisseur (mm) Isolation entre-montant des murs : 100

Isolation de la toiture

Epaisseur (mm) Isolation intérieure de la toiture : 240
Epaisseur (mm) Isolation entre-montant de la toiture : 100
Epaisseur (mm) Isolation extérieure de la toiture : 60

Approche environnementale : Les maîtres d’ouvrages souhaitaient avant tout une maison ossature bois couplée à une démarche écologique respectueuse de son environnement. Le choix de son bardage, posé à la vertical et teinté , va de paire avec la volonté d’intégrer la maison au paysage. Ainsi elle se devine à peine derrière le rideau d’arbres et en automne la teinte du bardage se confond avec les teintes mordorées du feuillage. L’approche sur les énergies a également été réfléchi avec l’installation d’une Chaudière granulée bois couplée à un soli maçonné permettant de stocker les granulés pour un an.

Descriptif technique : Maison ossature bois Bardage bois Mélèze de Sibérie Menuiseries aluminium RAL 7016 Volets persiennés bois Mélèze de Sibérie : confort d'été espace de vie Toiture terrasse étanchée pour végétalisation Cuve de récupération d'eau de pluie couplé en By-pass pour l'alimentation des WC Chaudière bois OKOFEN avec silo pour granulés Poêle à bois Hase Ventilation double flux Assainissement autonome: Stoc environnement

Chauffage au Bois : oui
Appareil de chauffage au bois : Poële/insert,Chaudière
Données déclaratives

Acteurs du projet

Etudes et ingénieries (1)

Maître d'œuvre - Architecte mandataire

SARA ARCHITECTURE (95)

Entreprises des lots bois (1)

Constructeur bois

MCOB (60)




* : L'entreprise n'est plus active
Retour à la liste