Travailler – accueillir, Habiter ensembleTravailler – accueillir, Habiter ensemble
Travailler – accueillir, Habiter ensemble

Résidence Eden

13005 Marseille - Bouches du rhône - Provence Alpes Côte d'Azur

BÂTIMENT / LOGEMENT

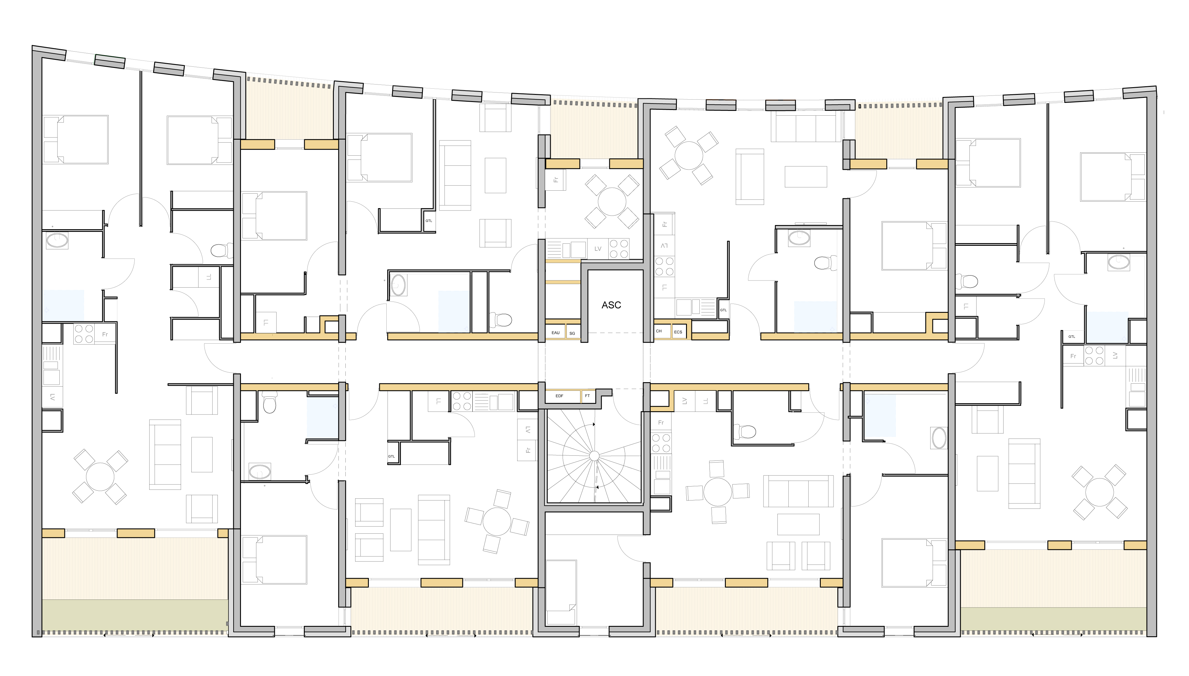
Entre la bruyante rue Saint Pierre et le silence du cimetière voisin, l’immeuble s’installe dans un quartier de faubourgs où se mêlent maisons de village et hauts immeubles modernes. Transition entre plusieurs échelles bâties, plusieurs mondes, le projet accueille des logements intimes en bois dans une structure en béton blanche. Les pilotis en V transfèrent le poids des logements sur l’infrastructure du parking enterré et libèrent deux niveaux de bureaux pour l’agence d’Habitat Marseille Provence. Les arbres forment un contrepoint végétal nécessaire à l’équilibre de l’ensemble.

Catégorie Bâtiment / logement
Numéro de projet1037
Adresse du projet Rue St Pierre
13005 Marseille
Date de candidature18/01/2019

Bâtiment / logement

Détail projet

Typologie de bâtiment : Neuf
Type de bâtiment : Lieu d'entreprise,Logement collectif
Année de livraison : 2018
Surface totale du bâtiment en m² : 3250
Coût total en € HT (hors foncier, hors VRD, hors honoraires) : 4541000
Lot bois n°1 concerné : Charpente bois
Volume lot bois n°1 - m³ : 101
Coût du lot bois n°1 - € HT : 201860
Lot bois n°2 concerné : ossature bois
Volume lot bois n°2 - m³ : 22
Coût du lot bois n°2 - € HT : 180000
Bois Français : oui

Structure bois du bâtiment

Structure verticale :

ProduitEssenceProvenances (lieu de croissance du bois)Traitements de préservationMarque et certification produit
Panneau ossature bois

Structure horizontale :

ProduitEssenceProvenances (lieu de croissance du bois)Traitements de préservationMarque et certification produit
Panneau de bois massif (CLT collé ou CLT cloué)

Charpente :

ProduitEssenceProvenances (lieu de croissance du bois)Traitements de préservationMarque et certification produit
Panneau massif

Revêtement bois extérieur

Revêtement bois ou dérivés :

ProduitEssenceProvenances (lieu de croissance du bois)Marque et certification produitFinitionTraitements de préservation
Panneau de synthèse ou composite

Menuiserie intérieure et extérieure

Menuiserie extérieure :

ProduitEssenceProvenances (lieu de croissance du bois)Marque et certification produitFinition
Brise soleil boisDouglas

Isolation des murs

Isolation entre-montant des murs :

Produit
Laine de roche
Epaisseur (mm) Isolation entre-montant des murs : 160

Isolation extérieure des murs :

Produit
Laine de roche
Epaisseur (mm) Isolation extérieure des murs : 140

Isolation de la toiture

Epaisseur (mm) Isolation extérieure de la toiture : 140

Approche environnementale : Structure compacte Maximum d'appartements traversants en jouant avec les duplex Structure permettant de supprimer tous les ponts thermiques Façades des bureaux en retrait + protection solaire (textile) extérieure Label Habitat & Environnement option très économe en charges

Descriptif technique : Structure béton armé R+8 Façades 50% ossature bois (finition panneaux composites) - 50% ITE (finition enduit) Terrasses CLT auto-portantes Garde-corps, claustras et pergolas bois (douglas) Habitat et Environnement

Chauffage au Bois : non
Données déclaratives

Acteurs du projet

Maître d'ouvrage (1)

Maître d'ouvrage - Bailleur social public

Habitat Marseille Provence (13)

Etudes et ingénieries (5)

Maître d'œuvre - Architecte mandataire

NSL ARCHITECTES INGENIEURS (13)

Bureau d'études acoustique

ETUDE REALISATION INDUSTRIEL ACOUSTIQUE (SERIAL) (66)

Bureau d'études structure bois

I2C (13)

Bureau d'études environnement

POLLEN SCOP (07)

Bureau d'études thermique

DOMENE (13)

Entreprises des lots bois (1)

Constructeur bois

EIFFAGE CONSTRUCTION PROVENCE (84)




* : L'entreprise n'est plus active
Retour à la liste