Apprendre – se divertir
Apprendre – se divertir

Paysage déployé _ Espace jeunes

50400 Granville - Manche - Normandie

AMÉNAGEMENT BOIS

Bâtiment / logement

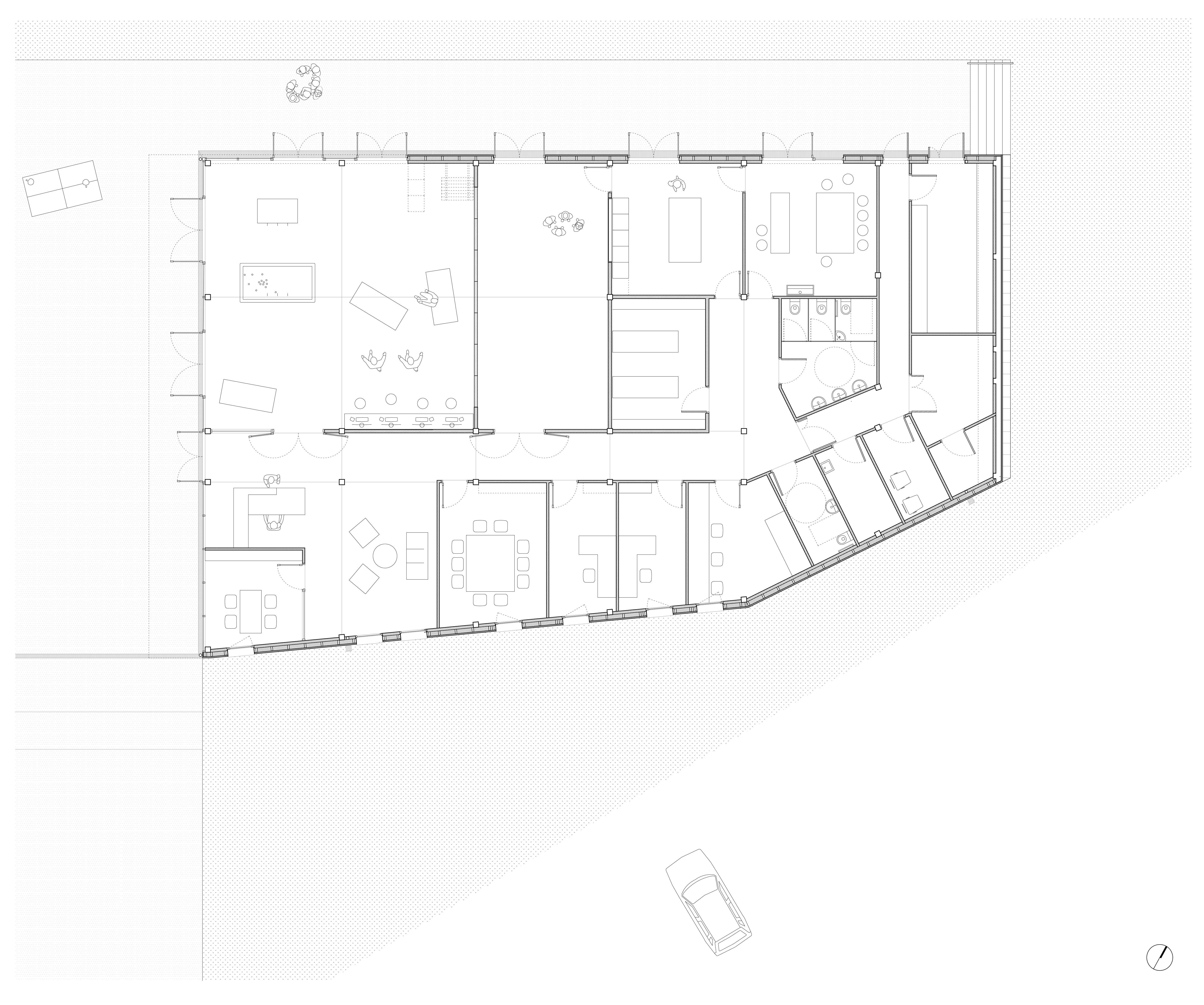
Pour répondre à la multiplicité des activités de l’espace jeune, nous avons choisi de travailler une structure de toiture créant des espaces variés à l’image d’un paysage avec une organisation créant une circulation centrale généreuse et fluide. Le hall et la salle d’accueil sont orientés Sud-Ouest pour amener luminosité et chaleur. Ils s’ouvrent vers le skate-park, les terrains de sport et profitent de la vue. La circulation centrale prolonge le hall et dessert à l’ouest les salles pour le public avec une belle hauteur sous plafond et à l’Est les bureaux avec une plus faible hauteur.

Catégorie aménagement bois, Bâtiment / logement
Numéro de projet1034
Adresse du projet 465 boulevard des Amériques
50400 Granville
Date de candidature17/01/2019

aménagement bois

typologie : Loisirs

Bâtiment / logement

Détail projet

Typologie de bâtiment : Neuf
Type de bâtiment : Loisirs
Année de livraison : 2018
Surface totale du bâtiment en m² : 480
Coût total en € HT (hors foncier, hors VRD, hors honoraires) : 511000
Lot bois n°1 concerné : Charpente bois
Coût du lot bois n°1 - € HT : 124555
Lot bois n°2 concerné : Menuiserie intérieure bois
Coût du lot bois n°2 - € HT : 54000
Bois Français : non

Structure bois du bâtiment

Structure verticale :

ProduitEssenceProvenances (lieu de croissance du bois)Traitements de préservationMarque et certification produit
Poteau poutreSapin pectinéTraitement Classe 2 (trempage)
Panneau ossature boisTempéréJe n'ai pas l'information

Structure horizontale :

ProduitEssenceProvenances (lieu de croissance du bois)Traitements de préservationMarque et certification produit
Plancher béton

Charpente :

ProduitEssenceProvenances (lieu de croissance du bois)Traitements de préservationMarque et certification produit
Charpente bois lamellé-colléSapin pectinéTraitement Classe 2 (trempage)

Revêtement bois extérieur

Autre revêtement métallique :

Produit
Zinc

Menuiserie intérieure et extérieure

Isolation des murs

Isolation intérieure des murs :

Produit
Laine de roche
Epaisseur (mm) Isolation intérieure des murs : 100

Isolation entre-montant des murs :

Produit
Laine de roche
Epaisseur (mm) Isolation entre-montant des murs : 145

Isolation de la toiture

Epaisseur (mm) Isolation entre-montant de la toiture : 280

Approche environnementale : Le bâtiment est conçu de façon à réduire sa consommation d’énergie. Sa forme réduit le volume à chauffer par rapport à la surface utile et limite la prise au vent. Les ouvertures sont placées stratégiquement (aucune au Nord, une baie vitrée au Sud et des portes vitrées à l’Ouest). La toiture est aussi pensée pour faire entrer la lumière naturelle dans le bâtiment. Les déformations de la toiture créent des ouvertures rappelant des sheds et permettent à la lumière d’entrer largement dans le bâtiment sans éblouissement. Une lame d’air entre le bardage et la charpente évite la surchauffe.

Descriptif technique : La structure du bâtiment suit une trame poteau-poutre en bois de 5x5m. Cette trame permet de mettre en place un cloisonnement intérieur indépendant de la structure et permettra donc au bâtiment d’évoluer selon les besoins de la ville. Le bardage et la toiture en zinc assurent la pérennité du bâtiment sans nécessiter beaucoup d’entretien. Le système de chauffage par le sol grâce à un circuit d’eau chaude permet aussi de refroidir le bâtiment en été, en faisant circuler de l’eau froide sans dépense d’énergie.

Chauffage au Bois : non
Données déclaratives

Acteurs du projet

Maître d'ouvrage (1)

Maître d'ouvrage - État ou collectivité (locale et territ)

Ville de Granville (50)

Etudes et ingénieries (5)

Maître d'œuvre - Architecte mandataire

OVERCODE architecture urbanisme (93)

Bureau d'études acoustique

NOX INGÉNIERIE (35)

Bureau d'études structure bois

NOX INGÉNIERIE (35)

Bureau d'études thermique

NOX INGÉNIERIE (35)

Economiste

NOX INGÉNIERIE (35)

Entreprises des lots bois (2)

Charpentier

Lepetit Daniel (50)

Menuisier

Gouelle Menuiserie (50)




* : L'entreprise n'est plus active
Retour à la liste