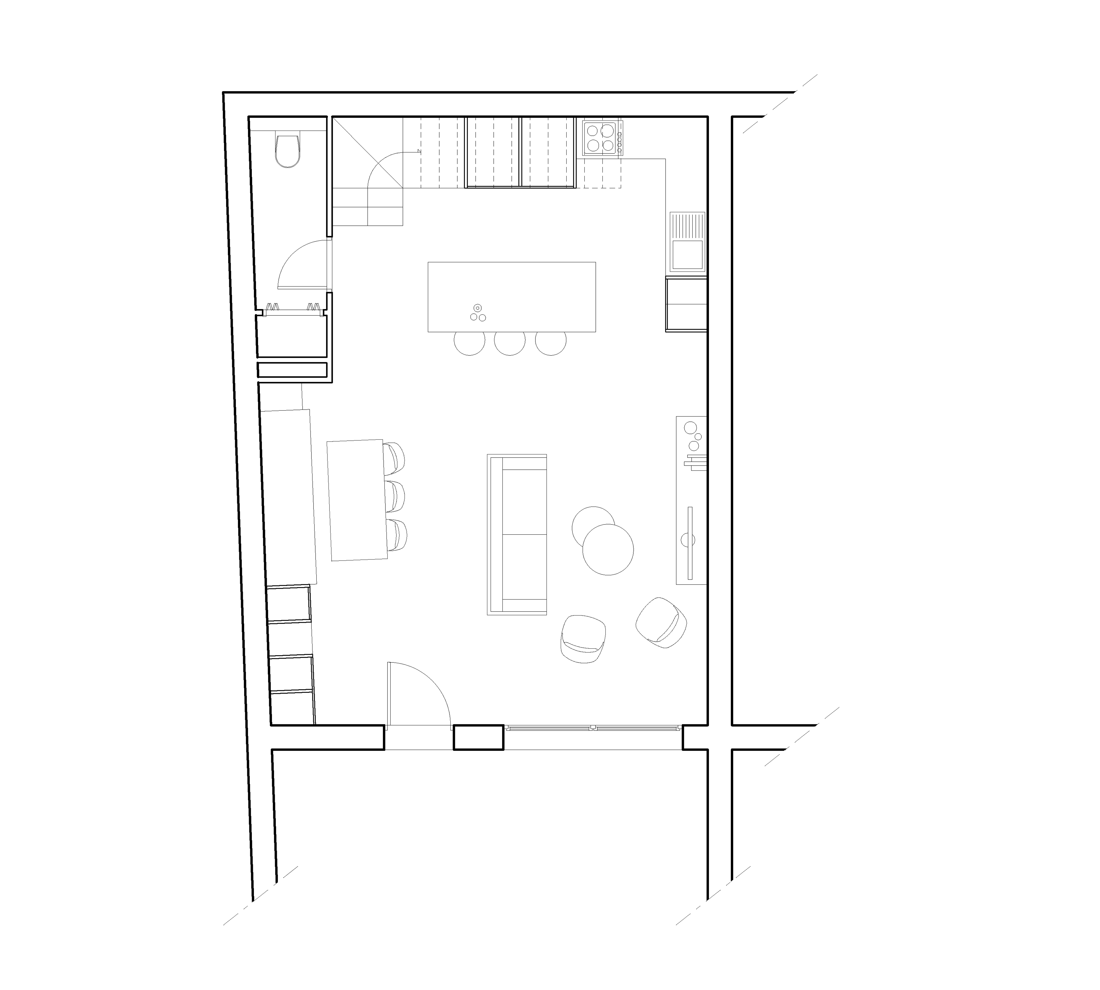
Dans une maison partiellement rénovée, de nouveaux propriétaires veulent terminer les aménagements par la création d’une entrée, d’une cuisine et d’un garde-corps pour l’escalier menant à l’étage. Deux meubles sont réalisés pour organiser ces fonctions de manière fluide et cohérente. Dans l’entrée, un grand meuble blanc équipé d’une penderie permet de ranger manteaux et chaussures en arrivant dans la maison. Le banc qui le prolonge délimite l’espace de la salle à manger et du salon. La cuisine vient se glisser sous l’escalier, un îlot et un lustre cadrent l’espace et achèvent de délimiter le salon. Sur les meubles, de longues poignées verticales en chêne massif clair font écho au dessin du garde-corps de l’escalier, créant ainsi un ensemble. Au chêne massif utilisé pour les poignées, les plans de travail et les sols, sont associés des matériaux moins coûteux : des portes en mélaminé. Cette association permet de trouver un équilibre esthétique et budgétaire.
Catégorie | aménagement bois, aménagement intérieur |
---|---|
Numéro de projet | 1026 |
Adresse du projet |
Rue marie de sormiou 13008 marseille |
Date de candidature | 16/01/2019 |
Liste des produits :
Produit | Essence | Provenances (lieu de croissance du bois) | Marque et certification produit | Finition | |
---|---|---|---|---|---|
Panneau massif d'agencement | Chêne | Aucune | Tropical | Huile | |
Mobilier |