Réhabiliter un équipement
Réhabiliter un équipement

Mairie de Runan

22260 RUNAN - Côtes d'Armor - Bretagne

BÂTIMENT / LOGEMENT

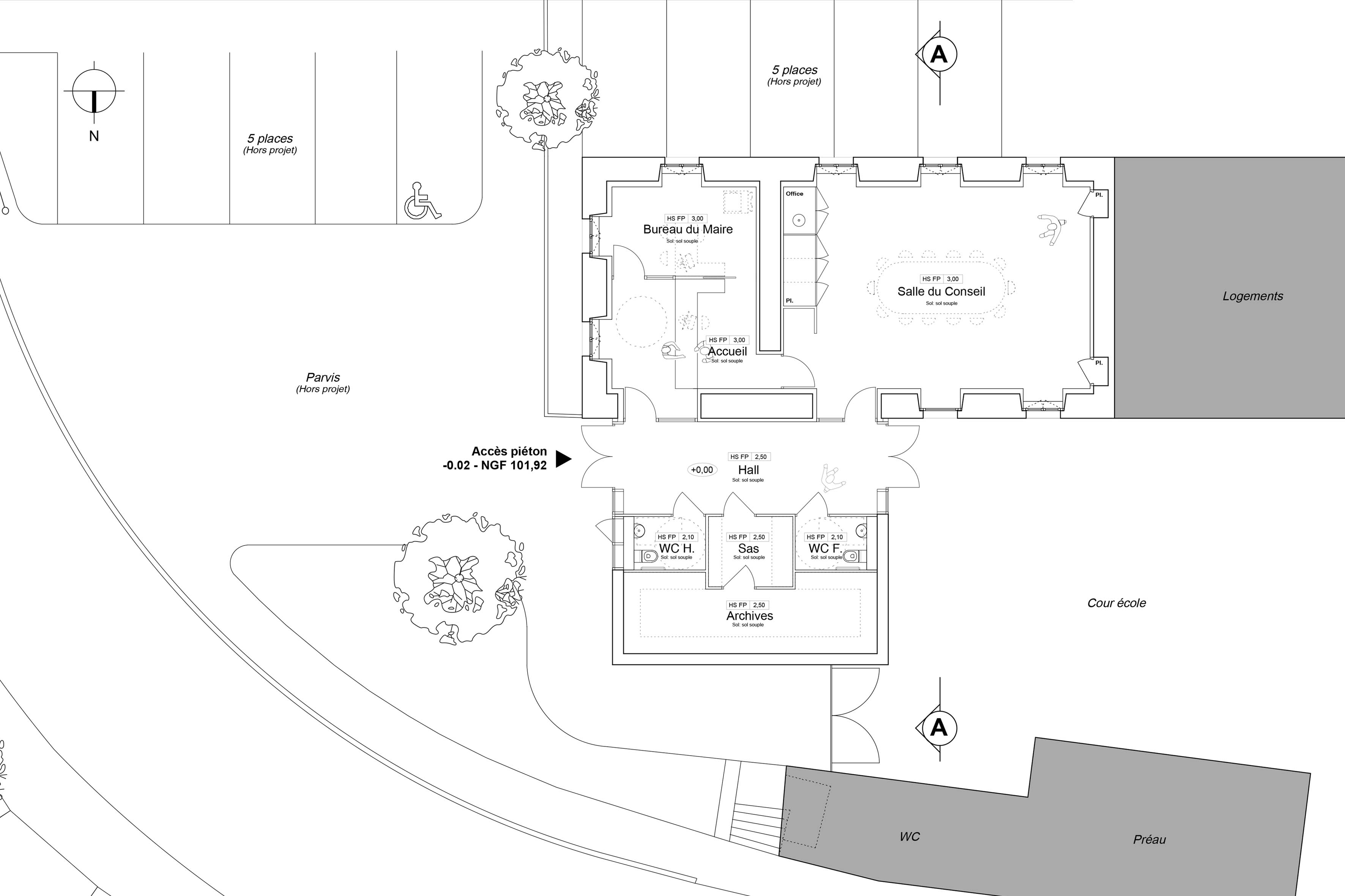
La commune de Runan s’organise autour de son église templière du XIIème siècle. La mairie est située à une centaine de mètres de là, légèrement excentrée. Elle ne répondait plus aux normes actuelles et montrait des signes d’étroitesse. La mairie est installée dans un édifice typique de l’architecture bretonne : en pierre et en ardoise. L’extension utilise l’ardoise pour créer une construction visible, formant un nouveau signal, sans s’imposer dans son environnement. Ce monolithe noir, aux reflets bleutés, produit une extension résolument contemporaine, aux accents bretons.

Catégorie Bâtiment / logement
Numéro de projet1019
Adresse du projet 5, rue du Trégor
22260 RUNAN
Date de candidature15/01/2019

Bâtiment / logement

Détail projet

Typologie de bâtiment : Extension / surélévation,Rénovation / Réhabilitation
Type de bâtiment : Service institutionnel et public
Année de livraison : 2018
Surface totale du bâtiment en m² : 133
Coût total en € HT (hors foncier, hors VRD, hors honoraires) : 198925.28
Lot bois n°1 concerné : Charpente bois
Volume lot bois n°1 - m³ : 8
Coût du lot bois n°1 - € HT : 10131.18
Lot bois n°2 concerné : Menuiserie intérieure bois
Volume lot bois n°2 - m³ : 2
Coût du lot bois n°2 - € HT : 24624.78
Bois Français : oui

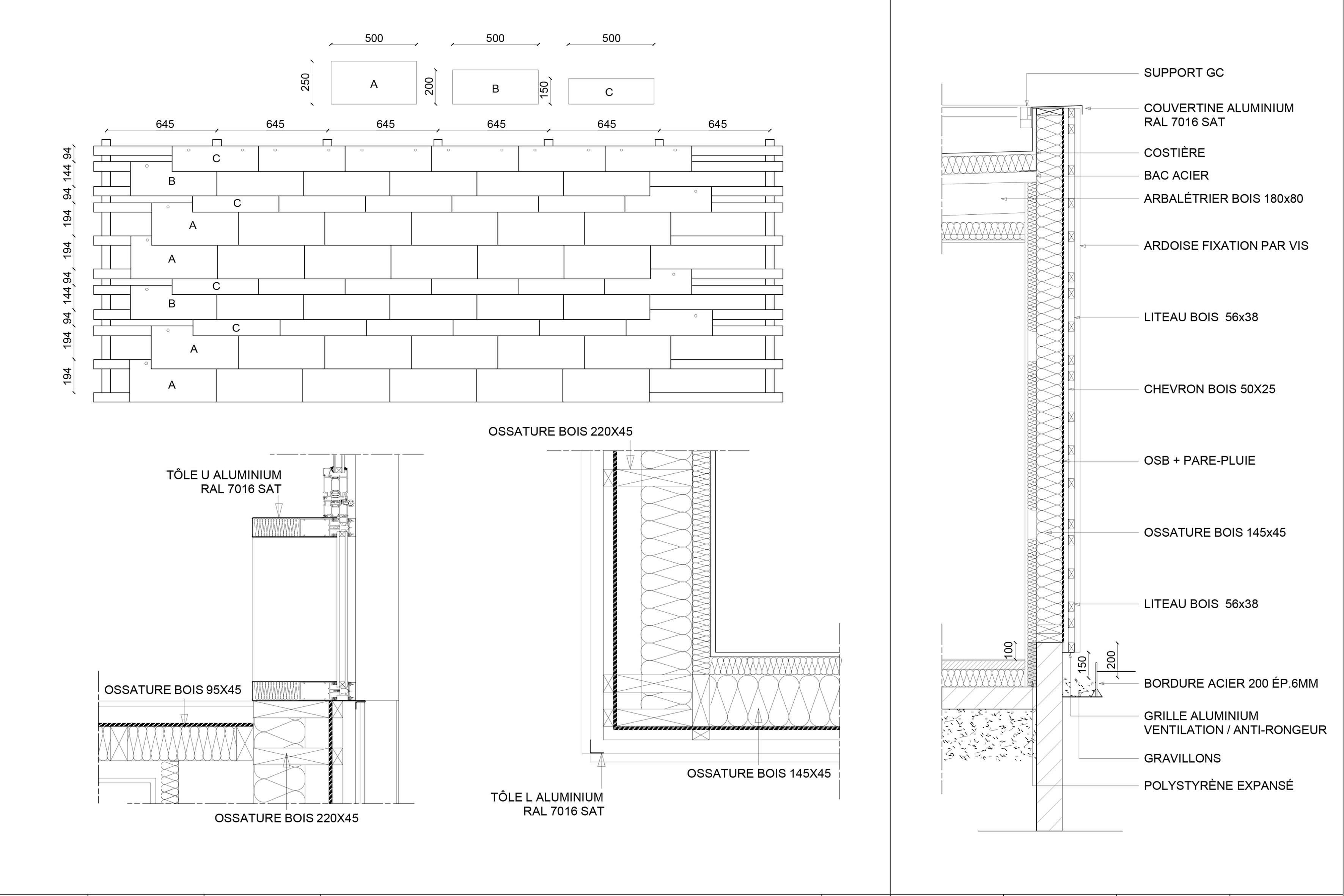
Structure bois du bâtiment

Structure verticale :

ProduitEssenceProvenances (lieu de croissance du bois)Traitements de préservationMarque et certification produit
Panneau ossature boisSapin pectinéGrand-EstTraitement Classe 4 (autoclave)

Structure horizontale :

ProduitEssenceProvenances (lieu de croissance du bois)Traitements de préservationMarque et certification produit
Panneau de bois massif (CLT collé ou CLT cloué)Sapin pectinéGrand-EstTraitement Classe 4 (autoclave)

Charpente :

ProduitEssenceProvenances (lieu de croissance du bois)Traitements de préservationMarque et certification produit
Charpente traditionnelleSapin pectinéGrand-EstTraitement Classe 4 (autoclave)

Revêtement bois extérieur

Revêtement minéral :

Produit
Autres

Menuiserie intérieure et extérieure

Menuiserie extérieure :

ProduitEssenceProvenances (lieu de croissance du bois)Marque et certification produitFinition
Menuiserie boisChêneEurope

Isolation des murs

Isolation intérieure des murs :

Produit
Laine de verre
Epaisseur (mm) Isolation intérieure des murs : 145

Isolation entre-montant des murs :

Produit
Laine de verre
Epaisseur (mm) Isolation entre-montant des murs : 45

Isolation de la toiture

Epaisseur (mm) Isolation intérieure de la toiture : 300
Epaisseur (mm) Isolation extérieure de la toiture : 300
Chauffage au Bois : non
Données déclaratives

Acteurs du projet

Maître d'ouvrage (1)

Maître d'ouvrage - État ou collectivité (locale et territ)

Commune de Runan (22)

Etudes et ingénieries (1)

Maître d'œuvre - Architecte mandataire

SIMON GUIENNE (22)

Entreprises des lots bois (2)

Charpentier

SOCIETE COOPERATIVE ETABLISSEMENTS GROLEAU (SCEG) (22)

Menuisier

SOCIETE COOPERATIVE ETABLISSEMENTS GROLEAU (SCEG) (22)




* : L'entreprise n'est plus active
Retour à la liste