Aménager
Aménager

Maison de ville à Nancy

54100 NANCY - Meurthe et Moselle - Grand Est

AMÉNAGEMENT BOIS

Aménagement intérieur

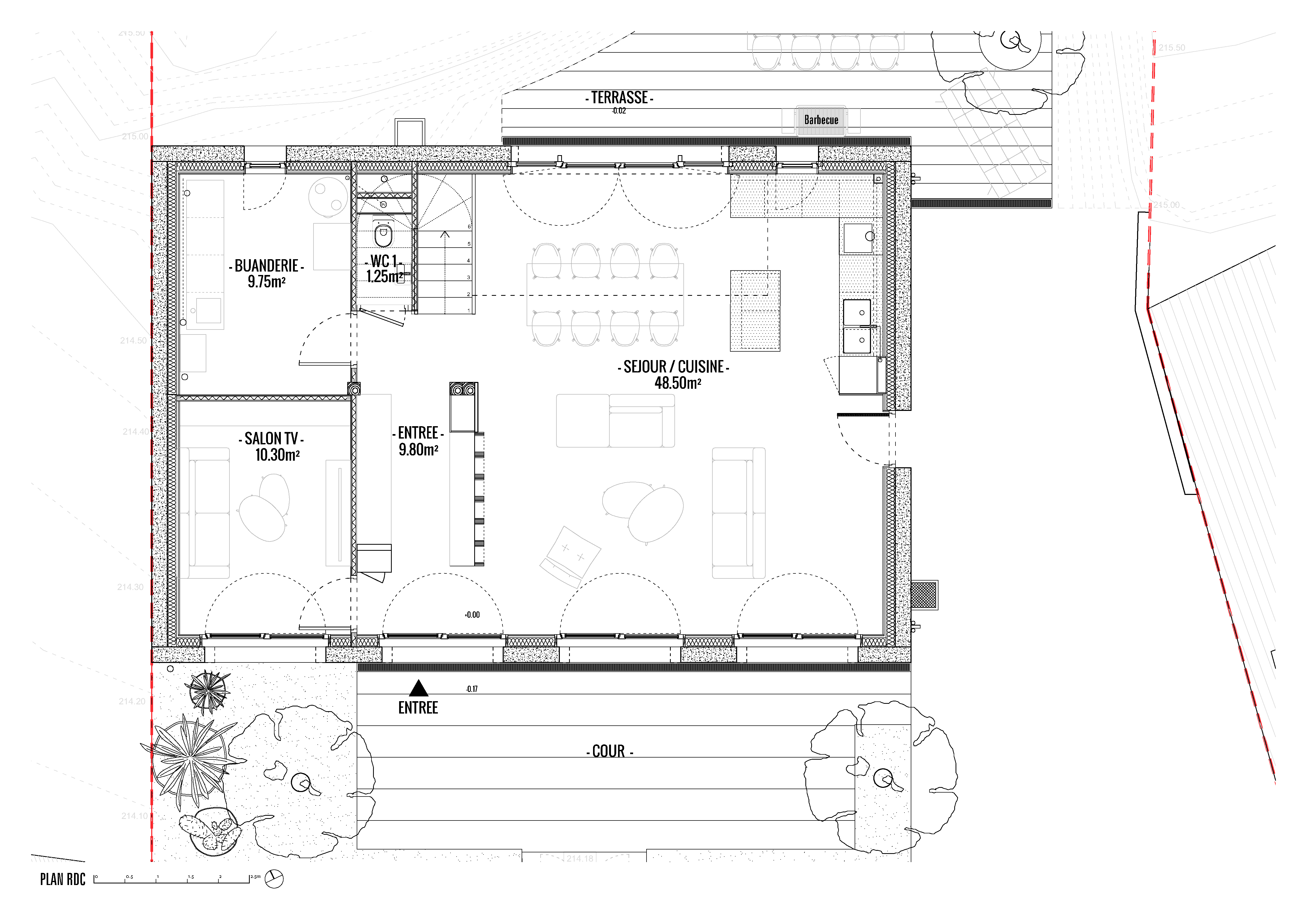
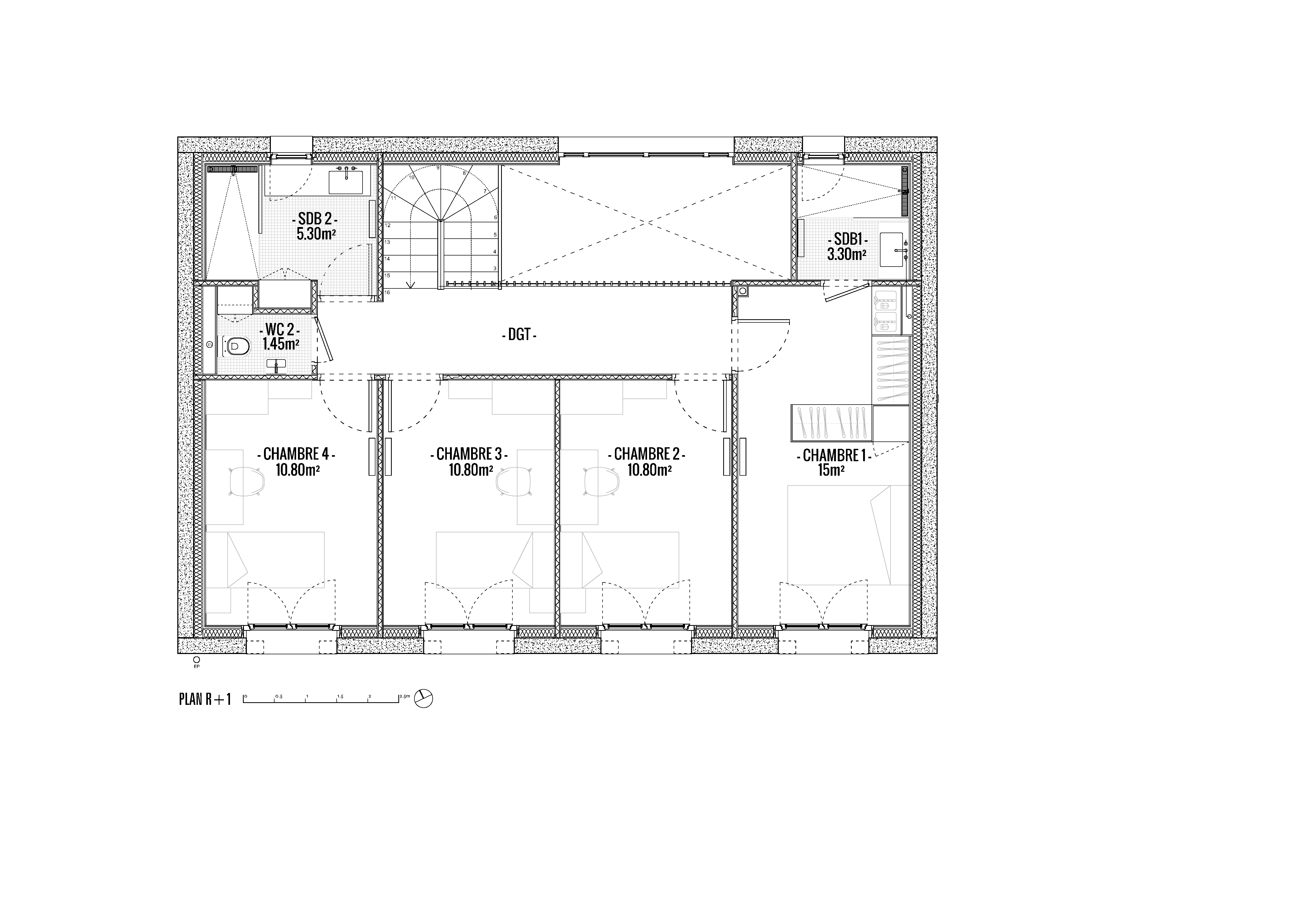
Dans cette maison de ville qui rappelle l'héritage Art Nouveau nancéen, les aménagements intérieurs participent à faire la part belle aux matériaux du territoire, mis en œuvre avec les savoir-faire des artisans. L'intégralité de la structure intérieure agit comme un grand meuble en bois, dans lequel on vit. Tous les éléments, de la charpente bois primaire jusqu'au mobilier intégré, sont dessinés de manière singulière mais forment un ensemble.

Catégorie aménagement bois, aménagement intérieur
Numéro de projet9554
Adresse du projet 8 rue saint-bodon
54100 NANCY
Date de candidature10/03/2025

aménagement bois

typologie : Logement individuel supérieur à 120 m²
Coût total en € HT : 380000

aménagement intérieur

Année de réalisation : 2024
Coût total Aménagement Intérieur en € HT : 50000
Coût lots bois en € HT : 32000
Surface aménagée en m² : 155

Liste des produits :

ProduitEssenceProvenances (lieu de croissance du bois)Marque et certification produitFinition
EscalierGrand-EstPEFCHuile
MobilierGrand-EstPEFCVernis
LambrisGrand-EstBois de FranceHuile
Bois Français : oui

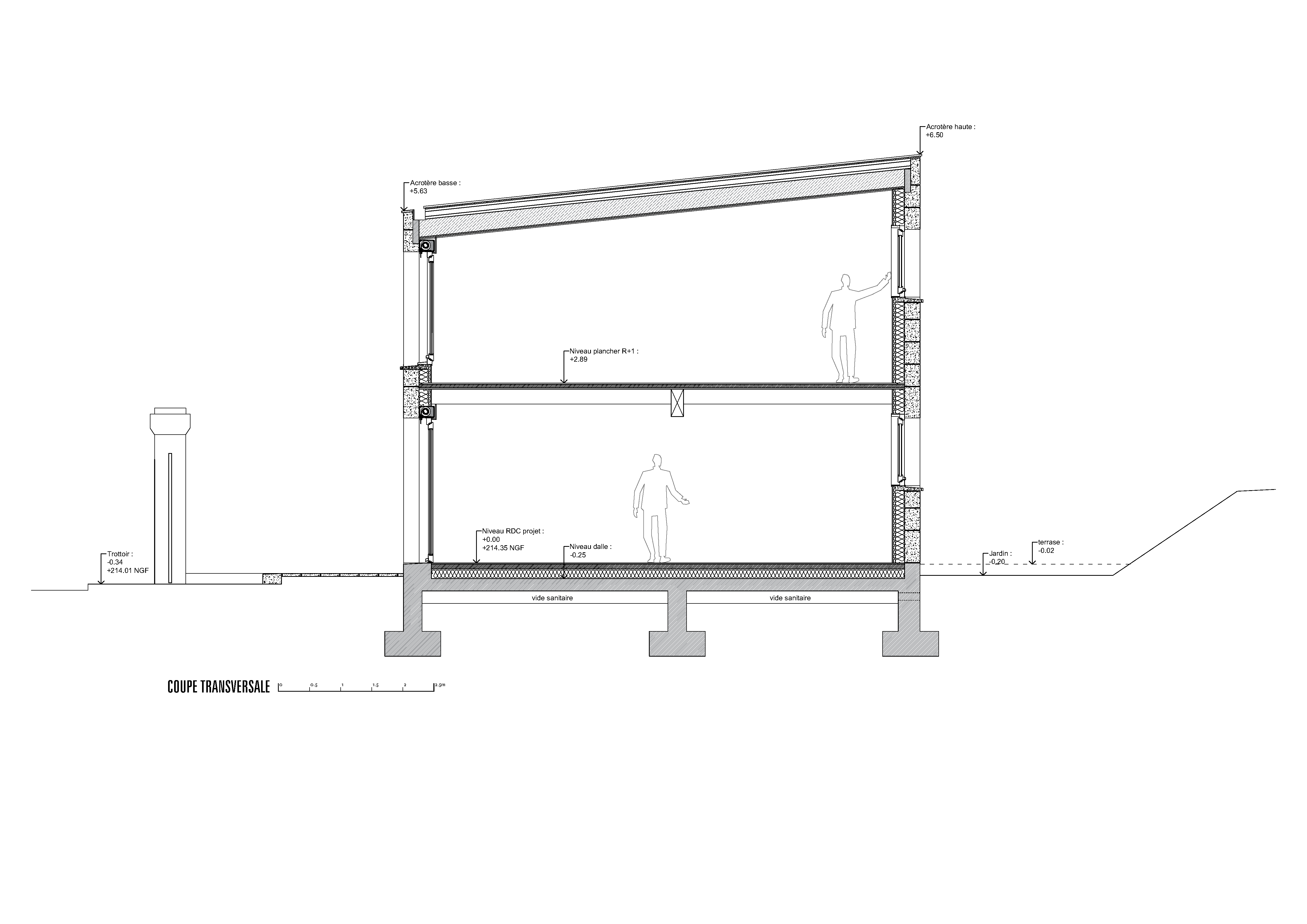
Approche environnementale : À l'intérieur des murs en pierre autoportante, la structure en bois reprend la typologie du bâti ancien, et reste visible dans les espaces, participant à l'ambiance. Elle garantit également une certaine évolutivité du plan, grâce au porteur principal à l'axe du plan, et des éléments de planchers secondaires. Exit la toiture plate, celle-ci est pentée pour pouvoir être en caissons bois, isolés en ouate de cellulose. Le panneau bois du caisson reste apparent en finition.

Descriptif technique de l'aménagement : Petit focus sur ce garde-corps que l'on cherchait à réaliser depuis un moment. Des planches d'épicéa suffisamment fines (15mm) pour être fléchies. Garde-corps en bas, et on écarte les lames en haut, pour voir au travers, comme dans les hautes herbes. Le plaisir de la courbe, naturelle qui tend les fibres et augmente leur rigidité. Notre ami Alexandre Hubert qui l'a construit avec d'autres amis. Il a pris du bois, non séché, chez un ami scieur Baptiste Menjoz à Charmois-devant-Bruyères. Mais quand les planches sont arrivées elles se sont avérées très chargées en traces de scolytes. On a hésité, puis on s'est dit : allez, on assume. Et c'est pour ça qu'on voit comme des traces d'encre, comme des estampes, sur les planches, qui rendent le bois encore plus unique.

Des matériaux issus du ré-emploi ont été utilisés dans le projet : non
Données déclaratives

Acteurs du projet

Maître d'ouvrage (1)

Maître d'ouvrage - Particuliers

particulier (x)

Etudes et ingénieries (1)

Maître d'œuvre - Architecte mandataire

CHRISTOPHE AUBERTIN ARCHITECTE (54)

Entreprises des lots bois (3)

Charpentier

SAS De Rambures et Paris (57)

Menuisier

Alexandre Hubert Ebeniste (54)

Autre lot de la construction (en lien avec le bois)

LAURENT FENETRES (55)

Autres (1)

Photographe

Olivier Mathiotte (54)




* : L'entreprise n'est plus active
Retour à la liste