Habiter une maison
Habiter une maison

Construction d'une maison de ville

54000 NANCY - Meurthe et Moselle - Grand Est
Lauréat régional
Finaliste national

BÂTIMENT / LOGEMENT

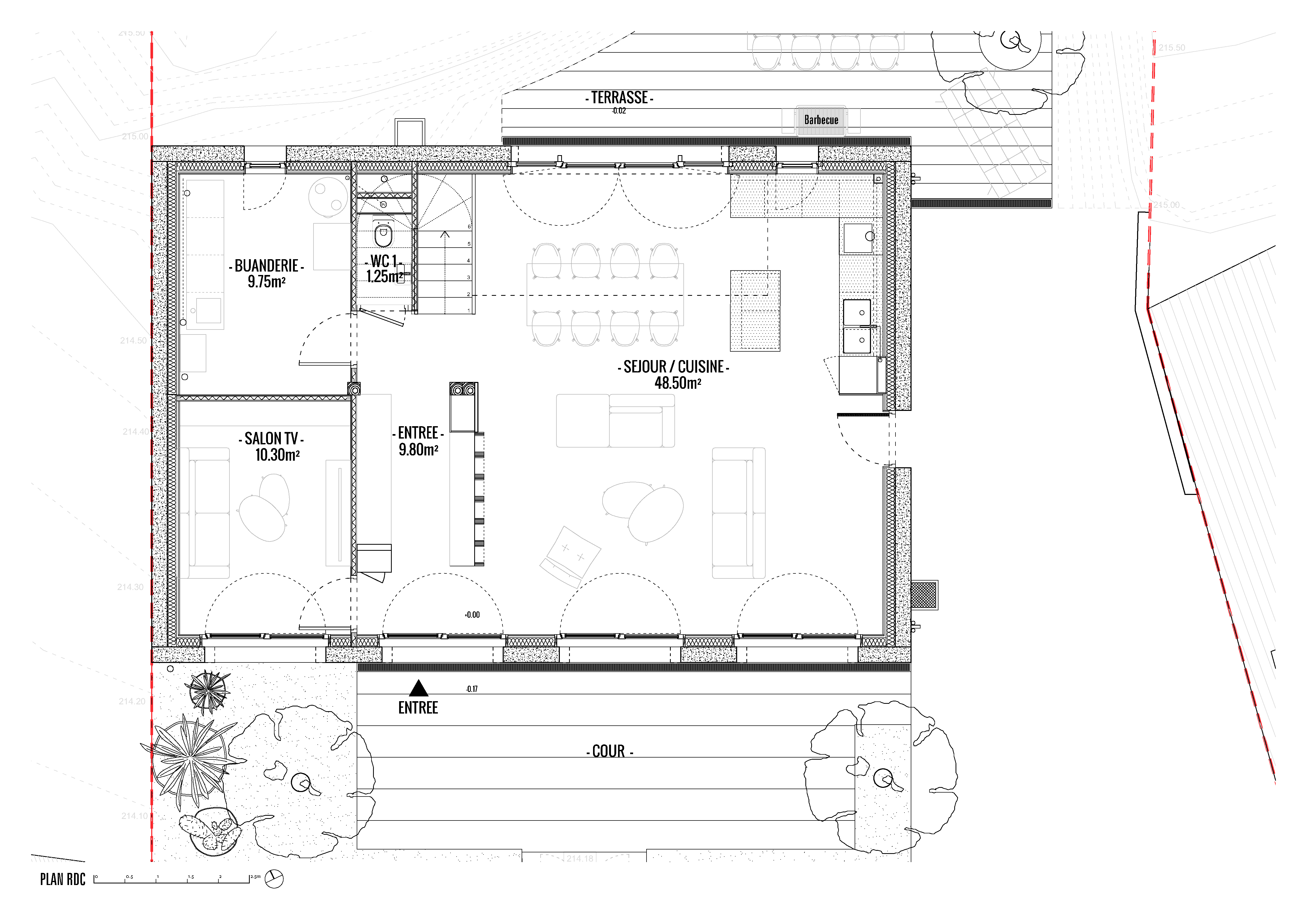
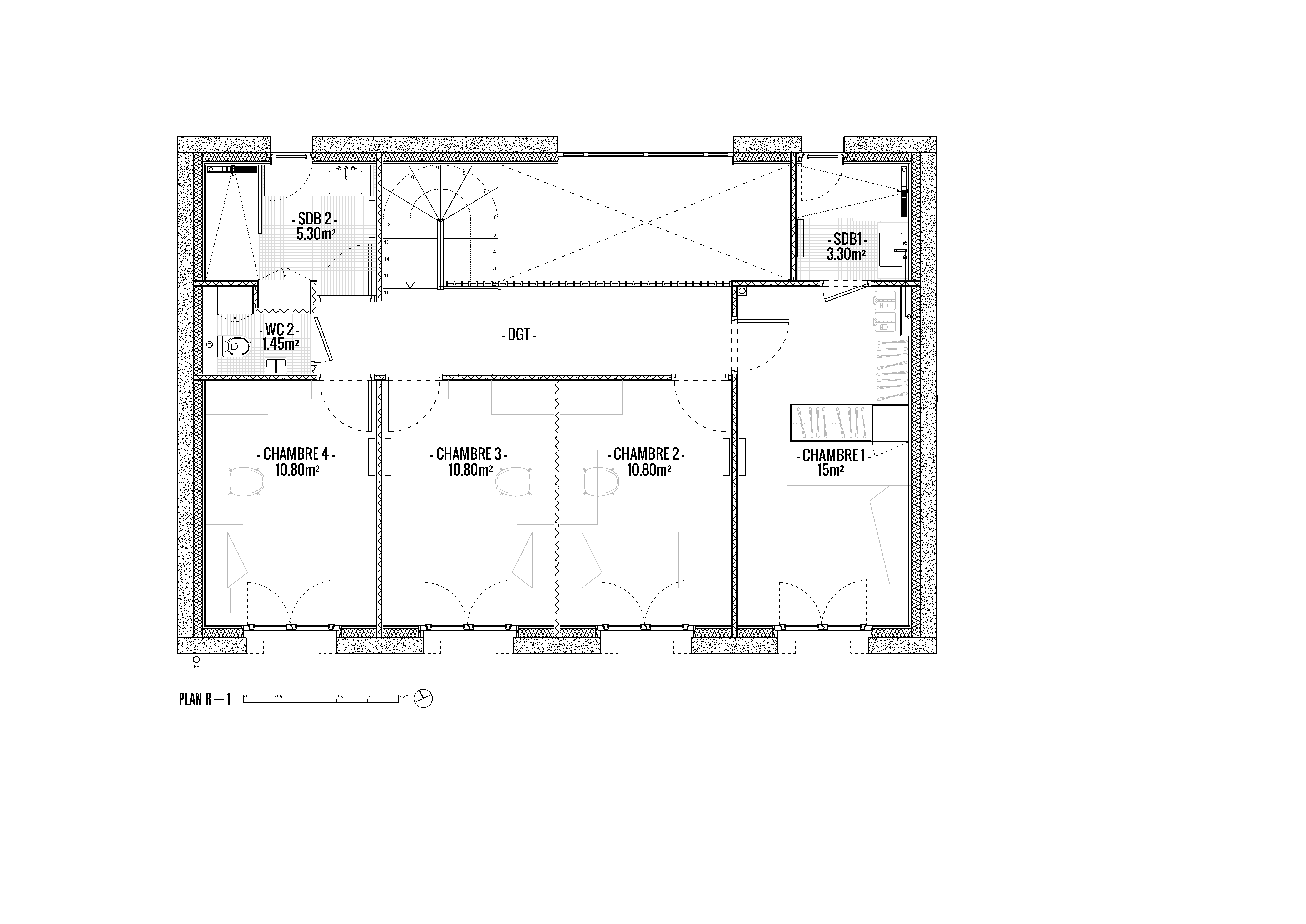
Maison de pierre et de bois qui explore la reconquête des techniques traditionnelles, le plaisir de l’artisan et l’écriture contemporaine. Nous avons été à l’écoute des entreprises pour proposer des ouvrages qui leurs tiennent à cœur et valorisent leurs savoir-faire. Dans l’idée d’un ouvrage collectif qui valorise cette idée de « l’architecture à énergie humaine » que nous défendons. En contrepartie la volumétrie est compacte, le plan rationnel. 1 grand séjour/cuisine, 1 bureau, 1 buanderie, 4 chambres, 2 sdb, 2wc. Programme contenu dans 155m² habitables, 380 000€HT, 2451€HT/m2

Catégorie Bâtiment / logement
Numéro de projet9477
Date de candidature05/03/2025

Bâtiment / logement

Détail projet

Typologie de bâtiment : Neuf
Type de bâtiment : Logement individuel supérieur à 120 m²
Année de livraison : 2024
Surface totale du bâtiment en m² : 155
Coût total en € HT (hors foncier, hors VRD, hors honoraires) : 380000
Volume lot bois n°1 - m³ : 19
Coût du lot bois n°1 - € HT : 78000
Volume lot bois n°2 - m³ : 3
Coût du lot bois n°2 - € HT : 19000
Bois Français : oui
Matériaux issus du ré-emploi (préciser dans le descriptif technique) : non
Isolations biosourcées (préciser dans le descriptif technique) : oui
Matériaux géosourcés (préciser dans le descriptif technique) : oui
Finitions intéreures biosourcées ou géosourcées (préciser dans le descriptif technique) : oui

Structure bois du bâtiment

Structure verticale :

ProduitEssenceProvenances (lieu de croissance du bois)Traitements de préservationMarque et certification produit
Poteau poutreÉpicéa communGrand-EstAucun traitementPEFC

Structure horizontale :

ProduitEssenceProvenances (lieu de croissance du bois)Traitements de préservationMarque et certification produit
Solivage traditionnelÉpicéa communGrand-EstAucun traitementPEFC

Charpente :

ProduitEssenceProvenances (lieu de croissance du bois)Traitements de préservationMarque et certification produit
Caisson de toitureÉpicéa communGrand-EstJe n'ai pas l'informationPEFC

Revêtement bois extérieur

Revêtement bois ou dérivés :

ProduitEssenceProvenances (lieu de croissance du bois)Marque et certification produitFinitionTraitements de préservation
Lame bois massifDouglasGrand-EstPEFCSaturateurTraitement Classe 3a (trempage)

Menuiserie intérieure et extérieure

Menuiserie intérieure :

ProduitEssenceProvenances (lieu de croissance du bois)FinitionMarque et certification produit
InstallationÉpicéa communGrand-EstAucune finitionPEFC

Menuiserie extérieure :

ProduitEssenceProvenances (lieu de croissance du bois)Marque et certification produitFinition
Menuiserie boisMélèzeGrand-EstPEFCVernis

Isolation des murs

Epaisseur (mm) Isolation intérieure des murs : 180

Isolation entre-montant des murs :

Produit
Fibre de bois (Panneaux)

Isolation de la toiture

Epaisseur (mm) Isolation entre-montant de la toiture : 300

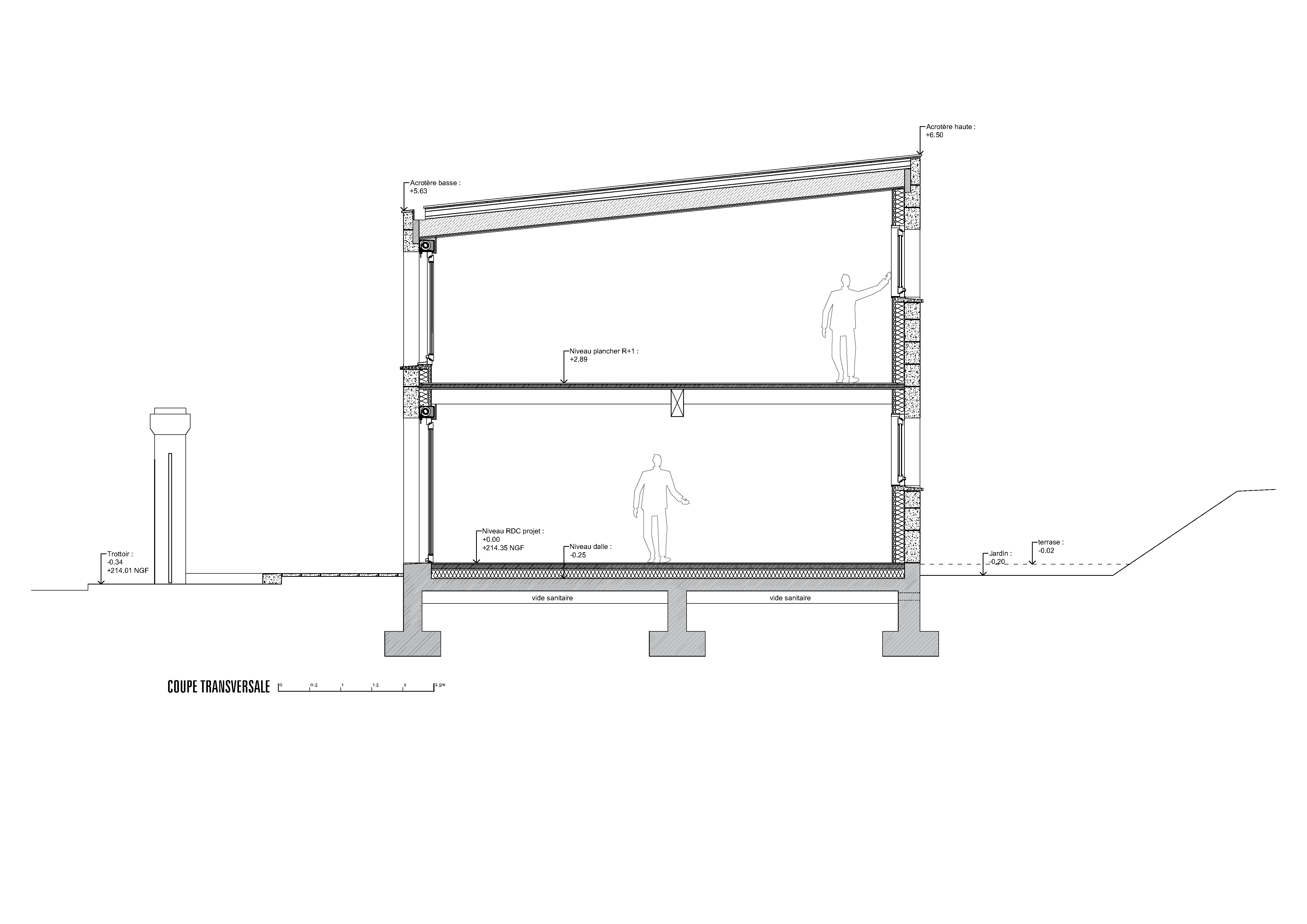
Approche environnementale : Les façades pierre autoportantes permettent d'économiser un parement, et d'apporter un confort thermique estival exceptionnel au bâtiment. À l'intérieur, la structure en bois reprend la typologie du bâti ancien, et reste visible dans les espaces, participant à l'ambiance. Elle garantit également une certaine évolutivité du plan, grâce au porteur principal à l'axe du plan, et des éléments de planchers secondaires. Exit la toiture plate, celle-ci est pentée pour pouvoir être en caissons bois, isolés en ouate de cellulose. Le panneau bois du caisson reste apparent en finition.

Descriptif technique : Petit focus sur ce garde-corps que l’on cherchait à réaliser depuis un moment. Des planches d’épicéa suffisamment fines (15mm) pour être fléchies. Garde-corps en bas, et on écarte les lames en haut, pour voir au travers, comme dans les hautes herbes. Le plaisir de la courbe, naturelle qui tend les fibres et augmente leur rigidité. Notre ami Alexandre Hubert qui l’a construit avec d’autres amis. Il a pris du bois, non séché, chez un ami scieur Baptiste Menjoz à Charmois-devant-Bruyères. Mais quand les planches sont arrivées, elles se sont avérées très chargées en traces de scolytes. On a hésité, puis on s’est dit : allez, on assume. Et c’est pour ça qu’on voit comme des traces d’encre, comme des estampes, sur les planches, qui rendent le bois encore plus unique.

Performance du bâtiment (Cep en kWhep/m²/an) : 50
Chauffage au Bois : oui
Appareil de chauffage au bois : Poële/insert
Données déclaratives

Acteurs du projet

Maître d'ouvrage (1)

Maître d'ouvrage - Particuliers

particulier (x)

Etudes et ingénieries (2)

Maître d'œuvre - Architecte mandataire

CHRISTOPHE AUBERTIN ARCHITECTE (54)

Bureau d'études thermique

TERRANERGIE (88)

Entreprises des lots bois (4)

Charpentier

SAS De Rambures et Paris (57)

Menuisier

Alexandre Hubert Ebeniste (54)
CAGNIN Menuiserie (88)

Autre lot de la construction (en lien avec le bois)

LAURENT FENETRES (55)

Fournisseurs du bois (1)

Scierie

Scierie BERTAUD et Fils (88)

Autres (1)

Photographe

Olivier Mathiotte (54)




* : L'entreprise n'est plus active
Retour à la liste